|
 |
ПОТОЛОЧНЫЕ РЕВИЗИОННЫЕ ЛЮКИ ПРАКТИКА ПОД ПОКРАСКУ.
|
УСТАНОВКА РЕВИЗИОННЫХ ЛЮКОВ под плитку и покраску: 8-903-130-94-87, 8-905-521-84-24
Удобные и надежные потолочные ревизионные люки Практика ГРАНД под покраску
больших размеров. БОЛЬШОЙ ПРОЕМ облегчает доступ к коммуникациям. ОБРАЗЕЦ МОЖНО ПОСМОТРЕТЬ НА НАХИМОВСКОМ ПРОСПЕКТЕ (ЭКСПОСТРОЙ) УСТАНОВЛЕН В ПРОЕМЕ
|
 |
Потолочный ревизионный люк ГРАНД малозаметен на потолке. Зазор между рамой и дверцей люка всего 2 мм.
На створку возможна установка светильников, трансформаторов, камер видеонаблюдения, элементов вентиляции и т.п. |
ТЕХНИЧЕСКИЕ ХАРАКТЕРИСТИКИ РЕВИЗИОННОГО ПОТОЛОЧНОГО ЛЮКА ГРАНД:
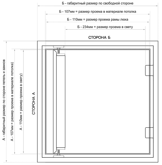
Размеры рамы: ширина по стороне петель от 800 до 2400 мм, длина
по свободной стороне от 400 до 2400 мм
Размеры створки: толщина 63 мм, зазор между рамой и створкой люка 2 мм
Нагрузка на створку люка до 10 кг (возможна установка
светильников, трансформаторов, камер видеонаблюдения, элементов вентиляции)
Конструкция: распашная схема открытия-закрытия, фетровый
уплотнитель по периметру люка, регулировка положения петель и замков, нажимные
замки грузоподъёмностью до 25 кг, технология изготовления люков аналогична
технологии производства окон и дверей, запатентованное страховочное устройство с
демпфером для избегания ударных нагрузок на конструкцию
Материалы: петли из стали, створка из ГВЛВ в раме из
непокрытого алюминиевого экструдированного профиля
Пожаробезопасность: потолочный люк на 99% состоит из негорючих материалов
Срок эксплуатации 10 лет с возможностью замены всех подвижных элементов
Комплектация: паспорт изделия, инструкция по установке, механический подъемник (по желанию клиента)
|

Потолочный крепеж |

Нажимной замок |

К каркасу створки люка закрепляется ГВЛВ, ГКЛ, МДФ или другой материал. |
ГАБАРИТЫ ПОТОЛОЧНОГО РЕВИЗИОННОГО ЛЮКА ГРАНД С ОТКРЫТОЙ ДВЕРЦЕЙ:
СТОИМОСТЬ ПОТОЛОЧНОГО РЕВИЗИОННОГО ЛЮКА ГРАНД ПОД ПОКРАСКУ:
ВНИМАНИЕ! ЦЕНЫ НА РЕВИЗИОННЫЕ ЛЮКИ ПРАКТИКА УТОЧНЯЙТЕ ПО ТЕЛЕФОНУ
Цены даны в рублях

КУПИТЬ
ВОЗМОЖНА КОМПЛЕКТАЦИЯ ПОДЪЕМНИКОМ.
В ЭТОМ СЛУЧАЕ СТОИМОСТЬ УВЕЛИЧИТСЯ НА 3 500 РУБЛЕЙ.
СЛЕДУЮЩИЕ РЕВИЗИОННЫЕ ЛЮКИ ПРАКТИКА:
САНТЕХНИЧЕСКИЕ РЕВИЗИОННЫЕ ЛЮКИ ПРАКТИКА СТАНДАРТНОГО РАЗМЕРА
САНТЕХНИЧЕСКИЕ ЕВИЗИОННЫЕ ЛЮКИ ПРАКТИКА ПО РАЗМЕРАМ ЗАКАЗЧИКА
НАПОЛЬНЫЕ САНТЕХНИЧЕСКИЕ РЕВИЗИОННЫЕ ЛЮКИ ПРАКТИКА С ГАЗОВЫМИ АМОРТИЗАТОРАМИ
ТЕХНИЧЕСКИЕ РЕВИЗИОННЫЕ ДВЕРИ ПРАКТИКА NEW
ПРИМЕРЫ УСТАНОВКИ РЕВИЗИОННЫХ ЛЮКОВ
О САНТЕХНИЧЕСКИХ РЕВИЗИОННЫХ ЛЮКАХ ПРАКТИКА
Так же предлагаем ревизионные люки-невидимки российских
производителей ТехКон и
ЛсИС - пластиковые и австрийские напольные люки Hago.
Обращаем Ваше внимание на то, что данный интернет - сайт носит исключительно информационный характер и ни при каких
условиях информационные материалы и цены, размещенные на сайте, не является
публичной офертой, определяемой положениями Статьи 437 Гражданского кодекса РФ.
Пожалуйста, для уточнения цен и условий продажи обращайтесь к менеджеру по телефону.
|